Este site utiliza cookies para permitir a mudança de língua e o armazenamento dos seus imóveis favoritos. Ao utilizar este site, concorda que o mesmo utilize cookies.

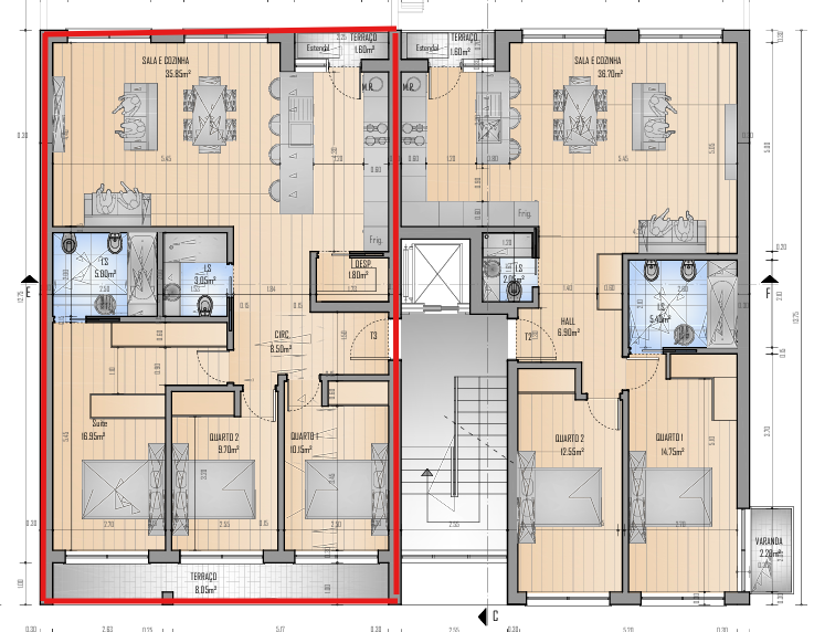
Apartamento T3 com Terraço privativo, Estacionamento e Arrecadação

355.000€



Referência

098761

Natureza

Venda

Tipo de Imóvel

Apartamento

Tipologia

T3

Estado

Novo

Certificado energético

A+

Ano

2026


Distrito

Faro

Concelho

Olhão

Freguesia

Moncarapacho e Fuseta

Código Postal

8700-769


Área Útil

117.1 m2

Área Bruta

127.1 m2

Área de Terreno

0 m2

Partilhar



Contactar Imobiliária

*Preenchimento obrigatório
Ao clicar em 'Enviar', declara que aceita a nossa Política de Privacidade.
Apartamento T3 em Moncarapacho, com varanda, terraço privativo na cobertura estacionamento e um quarto em suíte.
Localizado numa zona calma e de fácil acesso, este apartamento oferece conforto, luminosidade e bons acabamentos, 
 ideal para residência permanente ou investimento no Algarve.
Edificio
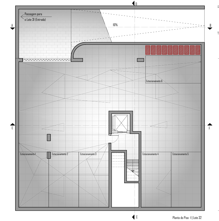
GeraisNº de Varandas:1
GeraisNº de Lugares de Estacionamento:1
GeraisNº de Garagens:1
ElevadorNº de Elevadores:1
Geral
GeraisNº de Casas de Banho:2
GeraisNº de Arrecadações:1

Este imóvel não tem áreas definidas.

Imóveis
Semelhantes

Apartamento
Venda

340.000€

Apartamento t3 com varanda e estacionamento

340.000€

Faro / Olhão / Moncarapacho e Fuseta


Ref: 98756764

Ref: 98756764

117 m2

3

2

Sim

Apartamento
Venda

290.000€

Apartamento t2 com varanda e estacionamento

290.000€

Faro / Olhão / Moncarapacho e Fuseta


Ref: 9875574098

Ref: 9875574098

95.7 m2

2

2

Sim

Apartamento
Venda

295.000€

Apartamento t2 com terraço e Estacionamento

295.000€

Faro / Olhão / Moncarapacho e Fuseta


Ref: 987656579

Ref: 987656579

93.5 m2

2

2

Sim